ΠΑΡΑΡΤΗΜΑ Α' |
| ΑΝΑΖΗΤΗΣΗ ΠΛΗΡΟΦΟΡΙΩΝ ΣΤΟ ΔΙΑΔΙΚΤΥΟ |
Αναζήτηση πληροφοριών στο διαδίκτυο
Μια από τις σημαντικότερες πηγές πληροφοριών που μπορούν να αξιοποιήσουν οι μαθητές αποτελεί το διαδίκτυο (Internet). Σε αυτό βρίσκεται ένα τεράστιο πλήθος από πληροφορίες που προέρχεται από πανεπιστήμια, ερευνητικά κέντρα, επιστημονικούς φορείς, αλλά και εταιρείες ακόμη και ιδιώτες.

Ο μαθητές μπορούν να αναζητήσουν πληροφορίες στο διαδίκτυο αξιοποιώντας τον υπολογιστή τους ή τους υπολογιστές του σχολικού εργαστηρίου. Για το σκοπό αυτό οι μαθητές δεχρειάζεται να γνωρίζουν συγκεκριμένες διευθύνεις που αφορούν αντίστοιχα θέματα. Αντίθετα,πρέπει να αναπτύξουν την ικανότητά τους να αναζητούν εκμεταλλευόμενοι τα διαθέσιμα εργαλεία. Έτσι στις ενότητες που ακολουθούν κατά κύριο λόγο θα περιγραφεί ο τρόπος με τον οποίο οι μαθητές μπορούν να αντλήσουν πληροφορίες από το διαδίκτυο. Στη συνέχεια θα δοθούν και κάποιες ενδεικτικές διευθύνσεις που περιέχουν πληροφορίες για μεγάλο αριθμό θεμάτων.
Μηχανές αναζήτησης 
Κατά την αναζήτηση πληροφοριών μέσω του διαδικτύου, ο μαθητής θα πρέπει να χρησιμοποιήσει κάποια μηχανή αναζήτησης. Πρόκειται για ειδικά προγράμματα με τα οποία ο χρήστης μπορεί να αναζητήσει στο διαδίκτυο πληροφορίες μεσω συγκεκριμένων λεξεων, ή προτάσεων. Στον πίνακα A-1 δίνονται μερικές από τις πιογνωστές μηχανές αναζήτησης.
Από τις μηχανές αναζήτησης κάποιες έχουν τη δυνατότητα να επεξεργάζονται λέξεις στα Ελληνικά ερευνώνταςσε Ελληνικές διευθύνσεις. Να τονίσουμε πάντως ότι ο μεγαλύτερος όγκος πληροφοριών είναι καταγραμμένος στηνΑγγλική γλώσσα.
Ως γενικές οδηγίες κατά την αναζήτηση πληροφοριών μέσω των μηχανών αναζήτησης μπορούμε να αναφέρουμε:
- Αποφύγετε να δίνετε μια μόνο λέξη-κλειδί, εκτός βέβαια αν αφορά κάτι το ιδιαίτερο.
|

Εικόνα Α-1: Η Google αποτελεί μια από τις δημοφιλέστερες μηχανές αναζήτησης
|
|
ΤΕΧΝΟΛΟΓΙΑ Α' ΓΥΜΝΑΣΙΟΥ |
- Αν για παράδειγμα ζητήσετε τη λέξη "μηχανή", θα σαςδώσει μερικά εκατομμύρια διευθύνσεις. Όσο πιο σαφείς είστε, τόσο καλύτερα θα είναιτα αποτελέσματα της αναζήτησης.
- Αν χρησιμοποιείτε περισσότερες από μια λέξεις κατά την αναζήτηση να τις συνδέετεμε το σύμβολο "+" (κάποιες μηχανές αντί του συμβόλου αυτού χρησιμοποιούν τη λέξηAND).
- Αν η αναζήτηση γίνεται με τη χρήση κάποιας φράσης, η φράση αυτή θα πρέπει να τεθεί μέσα σε εισαγωγικά.
- Αν η μηχανή αναζήτησης σας βρει μερικές χιλιάδες διευθύνσεις (ή και ακόμη περισσότερες), να θυμάστε ότι οι πιο ουσιώδεις εμφανίζονται συνήθως στην πρώτη εικοσάδα.
Ας υποθέσουμε ότι αναζητούμε πληροφορίες σχετικά με το θέμα τηλεπικοινωνίες χρησιμοποιώντας μια μηχανή αναζήτησης. Η διαδικασία που ακολουθούμε είναι σε γενικές γραμμές η εξής:
- Πληκτρολογούμε τη διεύθυνση της μηχανής αναζήτησης που έχουμε επιλέξει, οπότε μεταφερόμαστε στη βασική της οθόνη.
- Στο πάνω μέρος της οθονης υπάρχει ενα κενο πλαίσιο, στο οποίο εισάγουμε μια ή περισσότερες λέξεις που περιγράφουν το θέμα που μας ενδιαφέρει (στην περίπτωσή μας τηλεπικοινωνίες).
- Κάνοντας κλικ στο παράθυρο που γράφει Αναζήτηση η μηχανή αναζητά στο διαδίκτυο ιστοσελίδες, όπου αναφέρονται οι λέξεις που πληκτρολογήσαμε.
- Από τις διευθύνσεις που η μηχανή αναζήτησης ανακαλύψει (συνήθως είναι πάρα πολλές) μπορούμε να εισέλθουμε στις αντίστοιχες ιστοσελίδες.

Εκτός από τις απλές μηχανές αναζήτησης υπάρχουν και σύνθετες μηχανές - πολυμηχανές (metasearch engines) που μπορούν να αναζητούν αξιοποιώντας ταυτόχρονα πολλές μηχανές αναζήτησης. Οι διευθύνσεις από μερικές πολυμηχανές είναι:
Η διαδικασία αναζήτησης είναι και σε αυτές ίδια με τις απλές μηχανές αναζήτησης.
Επίσης στη διεύθυνση
http://explorer.scrtec.org/explorer/
υπάρχει μια μηχανή αναζήτησης για θέματα που συνδέονται με την τεχνολογία και τις επιστήμες.
Τέλος να σημειώσουμε ότι οι περισσότερες από τις μηχανές αναζήτησης του Πίνακα 1, δίνουν τη δυνατότητα αναζήτησης φωτογραφιών ή σκίτσων κάποιου θέματος (στην επιλογή images ή pictures). |
ΠΑΡΑΡΤΗΜΑ Α' |
Αναζήτηση με πύλες
Οι πύλες αποτελούν ιστοσελίδες, όπου τα θέματα είναι καταχωρημένα κατά κατηγορία (π.χ. ενέργεια, μεταφορές, κ.λ.π.). Είναι επομένως πιο εύκολη η αναζήτηση πληροφοριών σχετικά με κάποιο τεχνολογικό θέμα.
Μερικές σημαντικές πύλες (οι τρειςπρώτες Ελληνικές) είναι οι εξής:
http://www.physics4u.gr/blog/
Είναι η Ελληνική πύλη για θέματα επιστήμης και τεχνολογίας. Περιέχει πληροφορίες για ένα μεγάλο αριθμό θεμάτων, όπως Ιστορία και Αρχαιολογία, Διάστημα και Αστρονομία, Πληροφορική και Τηλεπικοινωνίες, Περιβάλλον, αλλά και θέματα Υγείας, θέματα Φυσικής, κ.ά
http://www.in.gr
Αποτελεί μια πύλη γενικού ενδιαφέροντος. Περιέχει μεγάλο αριθμό θεμάτων σχετικών με την τεχνολογία. |
 |
http://www.pi-schools.gr/library/pi-lib/hb_s_ekp-yliko.htm
Η πύλη αυτή περιέχει μεγάλο αριθμό θεμάτων. Μεταξύ αυτών θέματα εκπαίδευσης,ηλεκτρονικές βιβλιοθήκες, θέματα βιομηχανίας, τηλεπικοινωνιών, υπολογιστών, κ.ά.
http://portal.eatonweb.com/
Πύλη με πάνω από εκατό κατηγορίες θεμάτων. Μεταξύ αυτών τεχνολογία, επιστήμες, εκπαίδευση, κ.ά. Οι διευθύνσεις τις κάθε κατηγορίες παρουσιάζονται βαθμολογημένες (0-5 αστέρια).

|
http://www.techonline.com/
Στην πύλη αυτή υπάρχουν πληροφορίες σχετικά με τα ηλεκτρονικά και τις επικοινωνίες. Υπάρχουν κατηγορίες θεμάτων όπως εκπαιδευτικά θέματα και θέματα τεχνολογίας. |
|
ΤΕΧΝΟΛΟΓΙΑ Α' ΓΥΜΝΑΣΙΟΥ |
Χρήσιμες διευθύνσεις
Στην ενότητα αυτή δίνονται ενδεικτικά κάποιες διευθύνσεις ιστοσελίδων, στις οποίες δίνονται πληροφορίες για αρκετά τεχνολογικά θέματα.
http://users.otenet.gr/~foniflo/technology/
Η διεύθυνση αυτή οδηγεί σε μια ιστοσελίδα κατασκευασμένηειδικά για τα μαθήματα τεχνολογίας στην Ελληνική Γενική Εκπαίδευση. Παρουσιάζονται τα προγράμματα διδασκαλίας καθώςκαι τα διδακτικά εγχειρίδια. Επίσης καθηγητές παρουσιάζουν σχέδια διδασκαλίας και δημιουργίες μαθητών. Επιπλέον περιγράφονται πηγές πληροφόρησης, κυρίως απο το διαδικτυο. |
 |
| http://tsawww.org/

|
Η διεύθυνση οδηγεί στην ιστοσελίδα της Ένωσης Μαθητών για την Τεχνολογική Εκπαίδευση (Technology StudentAssociation -TSA). Πρόκειται για μια ένωση μαθητών και φοιτητών με κοινο ενδιαφέρον την τεχνολογική τους εκπαίδευση. Μέσα από την ιστοσελίδα οι μαθητές ανταλλάσσουν τιςαπόψεις τους για θέματα τεχνολογίας. Επίσης η ιστοσελίδα δίνει πρόσβαση στο περιοδικό School Scene που εκδίδει ηένωση. Στο περιοδικό παρουσιάζονται εκπαιδευτικά προγράμματα με θέμα την τεχνολογία, άρθρα, αλλά και ειδήσεις που αφορούν την ένωση. |
http://www.tmth.edu.gr/
Η διεύθυνση του Τεχνικού Μουσείου Θεσσαλονίκης περιέχει μεγάλο αριθμό τεχνολογικών θεμάτων, που τα παρουσιάζει κατά κατηγορίες, όπως Ηλεκτρισμός, Τηλεπικοινωνίες, Διάστημα, Υπολογιστές, κ.ά. Στην ιστοσελίδα παρουσιάζονται επίσης τα εκθετήρια του Μουσείου, καθώς και οι τρέχουσες δραστηριότητές του. |
 |
http://www.howstuffworks.com/
Η διεύθυνση δίνει πληροφορίες για ένα μεγάλο αριθμό τεχνολογικών θεμάτων οργανωμένων σε κατηγορίες. Εκεί μπορεί κάποιος να βρει πληροφορίες για θέματα υπολογιστών, ηλεκτρονικής, υγείας, αυτοκινήτου, περιβάλλοντος, κ.ά. Εξηγείται πώς δουλεύουν οι διάφορες συσκευές, τα μέρη από τα οποία αποτελούνται κ.λ.π.
http://www.econews.gr/tag/περιβάλλον/
Η διεύθυνση αυτή οδηγεί σε πύλη που αναφέρεται σε θέματα περιβάλλοντος. Υπάρχουν πολλά άρθρα σχετικά με: προστασία του περιβάλλοντος, θάλασσες, διαχείριση υδάτων,μόλυνση ατμόσφαιρας, κ.λ.π. |
ΠΑΡΑΡΤΗΜΑ Α' |
www.e-telescope.gr/el/science-and-technology
Στην ιστοσελίδα αυτή προσφέρεται σειρά μαθημάτων σχεδιασμού και τεχνολογίας σε μαθητές και καθηγητές. Το περιεχόμενοτων μαθημάτων είναι τεχνολογία και κατεργασία ξύλου, μετάλλων,πλαστικών, συστήματα CAD/CAM/CIM, υδραυλικά και πνευματικά συστήματα, κ.λ.π. |
 |
| www.lego.com

|
Η διεύθυνση οδηγεί στην ιστοσελίδα της εταιρίας Lego.Η Lego έχει δημιουργήσει εκπαιδευτικά πακέτα τεχνολογίας μονάδων (modulo), με τα οποία ο μαθητής μπορείσυνθέτοντάς τα να δημιουργήσει τις κατασκευές πουθέλει. Η ύπαρξη μονάδων με μικροεπεξεργαστή, κινητήρες, ηλιακά στοιχεία, κ.ά., επιτρέπει τη δημιουργία πολλών και διαφορετικών κατασκευών. |
http://www.hti.org/
H διεύθυνση οδηγεί στην ιστοσελίδα του Ινστιτούτου Εργαλείων Χειρός (Hand ToolsInstitute -HTI). Πρόκειται για την ένωση των κατασκευαστών εργαλείων χειρός της Βόρειας Αμερικής. Στην ιστοσελίδα δίνονται πληροφορίες για την επιλογή του κατάλληλου εργαλείου, καθώς και τις προδιαγραφές (standards) που υπάρχουν.
http://www.lathes.co.uk/
Στην ιστοσελίδα αυτή υπάρχει οτιδήποτε πρέπει να γνωρίζει κάποιος για τη λειτουργία των εργαλειομηχανών (τόρνος, φρέζα, κ.λ.π.). Περιγραφή λειτουργίας, τεχνικά άρθρα, λογισμικό, είναι μερικά από τα θέματα που παρουσιάζονται.
http://www.greenpeace.gr/pages/climate/climate_1.htm
Είναι η διεύθυνση της Greenpeace. Συγκεκριμένα ηGreenpeace παρουσιάζει άρθρα για τις κλιματολογικέςαλλαγές και την επίδραση που έχει σε αυτές η κατανάλωση ενέργειας. Στη σελίδα αυτή παρουσιάζονται επίσηςλύσεις που προτείνει η διεθνής αυτή ένωση, για να αντιμετωπιστεί το ενεργειακό πρόβλημα. |
 |
http://www.geocities.ws/
Στην ιστοσελίδα αυτή υπάρχουν οι διευθύνσεις από 300 sites οργανωμένα σε θέματα (Λογισμικό CAD, λογισμικό CAM, NCμηχανές, κ.ά.). |
ΤΕΧΝΟΛΟΓΙΑ Α' ΓΥΜΝΑΣΙΟΥ |
http://www.cres.gr/kape/kidsol/MAIN.htm
Η διεύθυνση αυτή οδηγεί σε μια εξαιρετική ιστοσελίδα του Κέντρου Ανανεώσιμων Πηγών Ενέργειας (ΚΑΠΕ) σχεδιασμένη ειδικά για παιδιά. Στη σελίδα αυτή με τρόπο απλό και παραστατικό παρουσιάζονται ολες οι ανανεώσιμες πηγές ενέργειας, ενώ δίνονται και οι εφαρμογές τους στην Ελλάδα. Επίσης δίνεται ένας δεκάλογος για την εξοικονόμηση ενέργειας.

http://www.eett.gr/opencms/opencms/EETT/index.html
Είναι η διεύθυνση της Εθνικής Επιτροπής Τηλεπικοινωνιών και Ταχυδρομείων. Στην ιστοσελίδα δίνονται πληροφορίες για το νομικό καθεστώς που διέπει τις τηλεπικοινωνίες στηνΕλλάδα και για τις διάφορες αποφάσεις της Επιτροπής. Δίνονται επίσης πληροφορίες για τις ασύρματες και τις δορυφορικές επικοινωνίες, το διαδίκτυο, τον τρόπο αριθμοδότησηςτων κλήσεων, τον τηλεπικοινωνιακό εξοπλισμό, κ.λ.π.
http://inventors.about.com/library/inventors/blairplane.htm
Η σελίδα αυτή παρουσιάζει την ιστορία των πτήσεων. Ξεκινώντας από την Ελληνική μυθολογία και την Αρχαία Κίνα και φθάνοντας στις προσπάθειες του Leonardo de Vinci παρουσιάζει την προσπάθεια του ανθρώπου να πετάξει. Επίσης με σύνδεσμο με το Μουσείο Επιστημών του Λονδίνου παρουσιάζει τις σημαντικότερες στιγμές της ιστορίας των αεροπλάνων, τα διάφορα μοντέλα αεροπλάνων με τα οποία ο άνθρωπος κατάφερε να πετάξει, καθώς και τις μηχανές τους. Τέλος παρουσιάζει την ιστορία των μηχανών των σύγχρονων αεροσκαφών.
http://www.railway-technology.com/
Στη σελίδα αυτή παρουσιάζεται η σύγχρονη τεχνολογία κατασκευής τραίνων. Δίνονται πληροφορίες για τουςπαραδοσιακούς σιδηροδρόμους, τραίνα υψηλής ταχύτητας, τραμ, μετρό. Επίσης δίνεται αλφαβητικός κατάλογοςτων εταιριών που ασχολούνται με τη κατασκευή σύγχρονων τραίνων. |
 |
|
ΠΑΡΑΡΤΗΜΑ Α' |
http://inventors.about.com/library/inventors/blplastic.htm
Στην ιστοσελίδα αυτή παρουσιάζεται η εξέλιξη των πλαστικών από την ανακάλυψή τους μέχρι σήμερα. Επίσης περιγράφονται οι διάφοροι τύποι πλαστικών που χρησιμοποιούνται σήμερα.
http://www.nal.usda.gov/Kids/
Είναι οι παιδικές σελίδες της Εθνικής Βιβλιοθήκης για γεωργικά θέματα. Στη σελίδα δίνονται πληροφορίες για τα τρόφιμα, τα ζώα, τα φυτά, το περιβάλλον, κ.λ.π. |
 |
| http://www.aistech.org/

|
Η διεύθυνση οδηγεί στην ιστοσελίδα της Ένωσης για θέματα Τεχνολογίας Σιδήρου και Χάλυβα (Association forIron and Steel Technology - AIST). Περιέχει πληροφορίες σχετικά με κατεργασία του σιδήρου, και τη δημιουργία τουχάλυβα. Δίνονται επίσης πληροφορίες για προγράμματα που έχουν υλοποιηθεί, και πολλά τεχνικά άρθρα. |
http://www.woodweb.com/
Η διεύθυνση οδηγεί σε ιστοσελίδα όπου αναφέρεται πλήθος εταιριών που δραστηριοποιούνται στο τομέα της κατεργασίας ξύλου. Οι εταιρίες παρουσιάζονται σε ομάδες ανάλογα με τη δραστηριότητά τους (κατασκευής μηχανών, επεξεργασίας, κ.λ.π.). Επίσης παρουσιάζεται σειρά θεμάτων που σχετίζονται με την κατεργασία του ξύλου.
http://www.kbsm.org/
Είναι η ιστοσελίδα του Knew Bridge Steam Museum. Στην ιστοσελίδα δίνονται πολλές πληροφορίες για τα ειδη των μηχανών ατμού, την ιστορία τους, διάφορες εφαρμογες τους,κ.ά. Υπάρχει επίσης πλούσιο φωτογραφικό υλικό.
http://www.nasa.gov/
Η διεύθυνση οδηγεί στην ιστοσελίδα της ΝΑΣΑ. Περιέχει ένα τεράστιο αριθμό θεμάτων, όπως αεροναυτική,ηλιακά δορυφορικά συστήματα, διαστημικοί σταθμοί. Επίσης υπάρχει πολύ υλικό (και φωτογραφικό) για τηνεξερεύνηση του σύμπαντος, τη ζωή στη γη, και τον άνθρωπο στο διάστημα. |
 |
|
ΤΕΧΝΟΛΟΓΙΑ Α' ΓΥΜΝΑΣΙΟΥ |
http://www.si.edu
Η διεύθυνση αυτή οδηγεί στο μεγαλύτερο μουσείο στον κόσμο στην Ουάσιγκτων. Το Ίδρυμα Smithsonian περιλαμβάνει μια σειρά από μουσεία, όπως:

|
- Τεχνολογίας και Βιομηχανίας
- Καλών Τεχνών
- Γλυπτικής
- Διαστήματος και αεροναυτικής
- Αλληλογραφίας
- Ζωολογίας
- Φυσικής Ιστορίας κλπ.
|
Επίσης διαθέτει σελίδες για εκπαιδευτικούς και μαθητές. Στις σελίδες των μαθητών παρουσιάζει μεγάλο αριθμό θεμάτων σχετικά με τις τέχνες, τις επιστήμες και την τεχνολογία και τον πολιτισμό. |
 |
|
ΤΕΧΝΟΛΟΓΙΑ Α' ΓΥΜΝΑΣΙΟΥ |
| Κατασκευή τεχνικών σχεδίων |
Προετοιμασία σχεδίασης
Τα τεχνικά σχέδια πραγματοποιούνται σε ειδικό έπιπλο που λέγεται σχεδιαστήριο. Αν στο εργαστήριο του σχολείου δεν υπάρχουν σχεδιαστήρια, θα αξιοποιηθούν οι επίπεδες επιφάνειες των πάγκων εργασίας με την παρατήρηση οτι θα πρέπει να είναι απόλυτα λείες. Η σχεδίαση γίνεται πάντα με μολύβι (απλό ξύλινο ή μηχανικό). Να σημειώσουμε εδώ ότι το πάχος των μολυβιών που πρέπει να χρησιμοποιηθεί είναι συνάρτηση του χαρτιού που θα χρησιμοποιηθεί, αλλά και της επιθυμητής ακρίβειας του σχεδίου. Είναι λοιπόν προτιμότερο ο μαθητής να χρησιμοποιεί μέσης σκληρότητας μολύβια. Επίσης απαραίτητα είναι μια σειρά απο σχεδιαστικά όργανα, τα οποία πρέπει να έχει συνεχώς μαζί του ο μαθητής κατά το στάδιο σχεδίασης. Ενδεικτικά αναφέρουμε τα εξής όργανα σχεδίασης:
Τα τρίγωνα.
Χρησιμοποιούνται για να χαράξουμε ευθείες γραμμές, ή γραμμές παράλληλες ή κάθετες σε δεδομένη ευθείαγραμμη.
Το υποδεκάμετρο-χάρακας.
Χρησιμοποιείται για να μετράμε μήκη, αλλά και σαν οδηγός για τη χάραξη ευθειών (συχνά σε συνδυασμό με ένα τρίγωνο).
Ο διαβήτης.
Χρησιμοποιείται για τη χάραξη κύκλων και κυκλικών τόξων. Επίσης για τη μεταφορά διαστάσεων.
Το καμπυλόγραμμο.
Χρησιμοποιούνται για να χαράζουμε καμπύλες γραμμές που δεν είναι κύκλοι ή τμήματα κύκλων.
 |

Εικόνα Β-1: Όργανα Σχεδίασης
|
Κατά τη σχεδίαση οι μαθητές θα πρέπει να έχουν κάποιες βασικές γνώσεις τεχνικού σχεδίου. Τέτοιες είναι:
- Σχεδίαση προβολών
- Σχεδίαση με διαστάσεις
- Σχεδίαση υπό κλίμακα
Σχεδίαση προβολών
Κάθε τεχνικό σχέδιο θα πρέπει να περιέχει πληροφορίες που θα διευκολύνουν την κατασκευή του αντικειμένου που παρουσιάζεται σε αυτό. Το κυριότερο πρόβλημα βρίσκεταιστο γεγονος οτι θα πρεπει να παρουσιαστεί σε δύο διαστάσεις, ενα τρισδιάστατο αντικείμενο. Για να ξεπεράσουμε το πρόβλημα αυτό:
- πραγματοποιούμε σχεδίαση των τριών όψεων (προβολών) του αντικειμένου.
- τοποθετούμε διαστάσεις στις προβολές.
|
ΠΑΡΑΡΤΗΜΑ B' |

Εικόνα Β-2: Προβολές στερεού αντικειμένου

Για τη σχεδίαση προβολών υπάρχουν τρία συστήματα (η μέθοδοι). Στο βιβλίο αυτό θα ακολουθηθεί το Ευρωπαϊκό σύστημα, που είναι και αυτό που εφαρμόζεται στην Ελλάδα. Σύμφωνα με αυτό από το σύνολο των έξι όψεων ενός τρισδιάστατου αντικειμένου, χρησιμοποιούνται οι τρεις,όπως φαίνονται στην Εικόνα Β2
- η κάτοψη, δηλαδή η εικόνα που βλέπουμε κοιτάζοντας το αντικείμενο από πάνω και προβάλλεται σε ένα οριζόντιο επίπεδο που βρίσκεται κάτω από το αντικείμενο.
- η πρόσοψη, δηλαδή η εικόνα που βλέπουμε κοιτάζοντας το αντικείμενο από εμπρός και προβάλλεται σε ένα κατακόρυφο επίπεδο που βρίσκεται πίσω από το αντικείμενο.
- η αριστερή πλάγια όψη, δηλαδή η εικόνα που βλέπουμε κοιτάζοντας το αντικείμενο από πλάγια αριστερά και προβάλλεται σε ένα κατακόρυφο επίπεδο που βρίσκεται στα πλάγια δεξιά (όπως κοιτάμε) του αντικειμένου.
 |

Εικόνα Β-3: Τοποθέτηση τωντριών όψεων.
|
Οι τρεις όψεις τοποθετούνται σε ορθή γωνία, όπως φαίνεται στην Εικόνα Β-3. Ιδιαίτερηπροσοχή πρέπει να δοθεί στη σχεδίαση, ώστε οι όψεις να ταιριάζουν μεταξύ τους.
Κατά τη σχεδίαση των όψεων ενός αντικειμένου
- Οι ορατές ακμές του αντικειμένου παριστάνονται απο πλήρεις γραμμές.
- Οι μη ορατές παριστάνονται από διακεκομμένες γραμμές.
- Αν συμπίπτει πλήρης γραμμή με διακεκομμένη επικρατεί η πλήρης.
Στην Εικόνα Β-4 φαίνεται ένα στερεό αντικείμενο και οι τρεις όψεις του.
Ο μαθητής θα πρέπει να σχεδιάσει τις όψεις από τα τμήματα της κατασκευής του. Αυτό θα του επιτρέψει στη συνέχεια να τα κατασκευάσει με ευκολία και ακρίβεια. |
ΤΕΧΝΟΛΟΓΙΑ Α' ΓΥΜΝΑΣΙΟΥ |

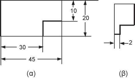
Εικόνα Β-4: Δημιουργία των τριών όψεων ενός τρισδιάστατου αντικειμένου.

Σχεδίαση με διαστάσεις
Ο βασικότερος ρόλος του τεχνικού σχεδίου ενός αντικειμένου είναι η διευκόλυνση στην κατασκευή του αντικειμένου. Για το λογο αυτο είναι σημαντικό να γνωρίζει ο κατασκευαστής τις διαστάσεις των τμημάτων που περιγράφονται στο σχέδιο.
Η κάθε διάσταση αποτελείται από:
- Τη γραμμή διάστασης (γραμμή παράλληλη στο αντικείμενο).
- Τις βοηθητικές γραμμές διάστασης (γραμμές συνήθως κάθετες στο σχέδιο).
- Τα σύμβολα αρχής και τέλους (συνήθως αιχμές βέλους, που τοποθετούνται στα σημεία συνάντησης των γραμμών διάστασης με τις βοηθητικές γραμμές).
- Την αριθμητική τιμή (στα σχέδια είναι εκφρασμένη σε cm ή mm).
- Για την τοποθέτηση των διαστάσεων στις όψεις ενός τεχνητού σχεδίου, ακολουθούνται τα εξής βήματα:
|

Εικόνα Β-5: Στοιχεία διαστάσεων.
|
Η κάθε διάσταση αποτελείται από:
- φέρουμε λεπτές βοηθητικές γραμμές (σχήμα Β-6α).
- τοποθετούμε τα βέλη των μικρότερωνδιαστάσεων μέσα και των μεγαλύτερωνέξω.
- τα βέλη των διαστάσεων απέχουν μεταξύ τους και απο το σχήμα περίπου10mm.
- οι διαστάσεις τοποθετούνται όσο το δυνατόν σε λιγότερες όψεις.
- οι διαστάσεις τοποθετούνται μία μόνοφορά.
- δίνονται πάντα οι συνολικές διαστάσεις.
|

Σχήμα Β-6: Τοποθέτηση διαστάσεων.
|
|
ΠΑΡΑΡΤΗΜΑ B' |
- οι αριθμοί τοποθετούνται όπως φαίνεται στο σχήμα.
- αν μία διάσταση είναι πολύ μικρή, βέλη και αριθμός τοποθετούνται όπως στο σχήμα Β-6β.
- οι διαστάσεις εκφράζονται σε mm η cm.
Σχεδίαση υπό κλίμακα
Όταν κατασκευάζουμε ένα μοντέλο ενός αντικειμένου, θέλουμε η μορφή του να μοιάζει με του πραγματικού. Για να το πετύχουμε αυτό θα πρέπει οι διαστάσεις του να έχουν μικρύνει ομοιόμορφα. Τότε λέμε ότι η σχεδίαση έχει γίνει υπό κλίμακα. Η κλίμακα εκφράζει τη σχέση ενος πραγματικού μήκους, προς το μήκος του ίδιου αντικειμένου στο σχέδιο.
Η κλίμακα ορίζεται από τη στρογγυλοποίηση της σχέσης:
Κλίμακα = 1: {(πραγματικό μήκος) / (μήκος σχεδίου)}
Τα αποτέλεσμα έχει βέβαια τη μορφή 1:α. Π.χ. κλίμακα 1:20 σημαίνει ότι ένα μήκος ενός εκατοστού στο σχέδιο αντιστοιχεί σε πραγματικό μήκος 20 εκατοστών. Δηλαδή το σχέδιο είναι 20 φορές μικρότερο από το αντικείμενο. Κλίμακα αυτού του είδους ονομάζεται αριθμητική. Οι κλίμακες μας βοηθούν να υπολογίσουμε
- από τις πραγματικές διαστάσεις του αντικειμένου τις διαστάσεις του σχεδίου
- από τις διαστάσεις του σχεδίου τις πραγματικές διαστάσεις του αντικειμένου
Οι συνηθέστερες κλίμακες είναι:
- Μικρές κλίμακες, για αναπάρασταση μεγάλων φυσικών εκτάσεων (όπως γήπεδα, βουνά, κ.λ.π.), όπως είναι 1:10000, 1:5000,1:1000, 1:500, 1:200.
- Μεσαίες κλίμακες, για σχεδίαση κτηρίων, βιομηχανικών αντικειμένων (όπως αυτοκίνητα, τραίνα, αεροπλάνα, κ.λ.π.), όπως είναι 1:200, 1:100, 1:50, 1:20.
- Μεγάλες κλίμακες, για σχεδιασμό εξαρτημάτων ή για περιπτώσεις που χρειάζεται αναπαράσταση λεπτομερειών, όπως είναι 1:20, 1:10, 1:5, 1:2, 1:1.
Το ζητούμενο στη σχεδίαση που θα πραγματοποιήσει ο μαθητής είναι να επιλέξει τη σωστή κλίμακα και με βάση αυτή να πραγματοποιήσει τα σχέδια. Στη περίπτωση αυτή ακολουθούμε την εξής διαδικασία:
- δημιουργούμε ένα σκαρίφημα του αντικειμένου.
- μετράμε τις διαστάσεις του αντικειμένου.
- εκτιμούμε το μέγεθος της μεγαλύτερης διάστασης του μοντέλου που θα κατασκευάσουμε.
- υπολογίζουμε το λόγο Λ = Π/Σ όπου
Π: το μήκος της μεγαλύτερης διάστασης του αντικειμένου
Σ: μήκος της αντίστοιχης διάστασης του σχεδίου.
- Επιλέγουμε τηη κλίμακα που είναι πλησιέστερα στη σχέση 1:Λ.
- Πραγματοποίηση σχεδίων (υπολογισμός των διαστάσεων του αντικειμένου στο σχέδιο)
- Έστω 1:Κ η κλίμακα που έχει επιλεγεί. Μεταφέρουμε τις διαστάσεις του πραγματικού αντικειμένου στο σχέδιο, χρησιμοποιώντας τη σχέση:
Κ = Π/Σ <=> Σ = Π/Κ όπου
|
ΤΕΧΝΟΛΟΓΙΑ Α' ΓΥΜΝΑΣΙΟΥ |
- Κ: η κλίμακα
- Π: μία διάσταση του πραγματικού αντικειμένου
- Σ: η διάσταση αυτή στο σχέδιο
- Δημιουργούμε με προσοχή τα σχέδια της κατασκευής. Οι διαστάσεις θα πρέπει να έχουν το σωστό μήκος, οπως αυτο προκύπτει απο το προηγούμενο βήμα
Από το σχέδιο μπορούμε να υπολογίσουμε τις πραγματικές διαστάσεις του αντικειμένου.Για να το πετύχουμε εργαζόμαστε ως εξής
Έστω 1: Κ η κλίμακα που έχει επιλεγεί. Μετράμε μια διάσταση στο σχέδιο, έστω Σ. Τότετο μήκος της αντίστοιχης διάστασης του πραγματικού αντικειμένου (έστω Π) υπολογίζεταιαπό τη σχέση
Κ = Π/Σ <=> Π = Κ•Σ όπου
Κ: η κλίμακα
Π: μία διάσταση του πραγματικού αντικειμένου
Σ: η διάσταση αυτή στο σχέδιο
Έστω για παράδειγμα ένας μαθητής θέλει να κατασκευάσει το μοντέλο ενός αεροπλάνου μήκους 20m (Π=20m<=>Π=2000cm). Θέλει δε το μοντέλο του να έχει μήκος περίπου 40cm (Σ=40cm). Για να επιλέξει την κατάλληλη κλίμακα υπολογίζει αρχικά το λόγο (πραγματικό μήκος):(μήκος μοντέλου) = 2000:40 = 50 (δηλαδή Κ=50). Αρα θα χρησιμοποιήσει κλίμακα 1:50.
Αν τώρα το κάθε φτερό του αεροπλάνου έχει μήκος 8m (Π=8m), στο σχέδιο θα έχει μήκος Σ = Π/Κ = 8:50 = 0.16m, δηλαδή 16cm. Αντίστοιχα υπολογίζονται και οι διαστάσεις (στο σχέδιο) και των υπόλοιπων τμημάτων. |
ΠΑΡΑΡΤΗΜΑ B' |
ΒΙΒΛΙΟΓΡΑΦΙΑ
- Βέντζας Δ., Γλώσσας Ν., Δουλγέρης Γ., Ειδικά Θέματα Μηχανικής και Ηλεκτρισμού,εκδ. ΙΔΕΚΕ, 2000.
- Γλώσσας Ν., Σημειώσεις του μαθήματος Τεχνολογία και Παραγωγή ΕΠΛ.
- Ηλιάδης Ν., Το Μάθημα της Τεχνολογίας στη Γενική Εκπαίδευση, εκδ. Ίων, 1983.
- Ηλιάδης Ν., Μαθαίνοντας στο Internet Τεχνολογία, εκδ. Καστανιώτη, 2002.
- Ηλιάδης N., Βουτσίνος Γ., Τεχνολογία για τους μαθητές Α' γυμνασίου, εκδ. ΟΕΔΒ, 2000.
- Σολομωνίδου Χ., Εκπαιδευτική Τεχνολογία, εκδ. Καστανιώτη, 1999
- Τσιαντής Κ., Χαραλαμπάκης Ν., Αθανασάκης Αρ., Δημόπουλος Φ., Δασκαλάκης Α., Τεχνολογία και Παραγωγή Α' τάξης ΕΠΛ, Α' και Β' τόμος, εκδ. ΟΕΔΒ, 1984.
- Παπαμητούκας Β., Μηχανολογικό Σχέδιο, εκδ. University Studio Press, 1983.
- Frey Κ., Η μέθοδος Project, εκδ. Κυριακίδη, 1986.
- Hopf D., Διαφοροποίηση της σχολικής εργασίας, εκδ. Κυριακίδης, 1982
- Maley D. , The Maryland Plan, New York: Bruce Inc., 1973.
- Neil Α., Ανακαλύπτω την Τεχνολογία, εκδ. Ερευνητές, 1996.
- Sanders Μ., Τεχνολογία Επικοινωνιών, Ίδρυμα Ευγενίδου, 1998. Smith. H.,
- Ενέργεια: Πηγές - Εφαρμογές - Εναλλακτικές Λύσεις, Ίδρυμα Ευγενίδου, 1996.
|